• Шпунт
  • Декинг
  • Наши работы
  • Компания
  • Контакты
+7-926-066-73-77
Москва
  • Монтаж декинга
  • Противошумные шумопонижающие экраны

Противошумные шумопонижающие экраны

Шумопоглощающие и шумоотражающие панели из ПВХ применяются в конструкциях шумозащитных экранов для снижения шума транспортных потоков автомагистралей, железнодорожных путей, аэродромов, шума в промышленных зданиях, для облицовки стен автомобильных, железнодорожных тоннелей, тоннелей метрополитена, лифтовых шахт. 

Акустические экраны из ПВХ не подвержены процессам коррозии. В течение всего срока эксплуатации они сохраняют свой первоначальный вид и функции. Экраны не требуют технического обслуживания (покраска, удаление ржавчины и т.д.) достаточно только периодической мойки. Профили, изготовленные из модифицированного ПВХ, сохраняют все свои эксплуатационные качества, а также форму в пределах температур от -25 до +75 градусов С. и отличаются стойкостью к воздействию кислот, щелочей, масел и жиров, бензина, моющих средств и пищевых продуктов

Преимущества

Преимущества устройства шумозащитных экранов на дорогах из кассет ПВХ перед традиционными бетонными, деревянными, стальными и  алюминиевыми:
 
  1. В отличие от алюминиевых, не представляют интереса для населения с точки зрения сдачи в пункты приема цветных металлов. Отсутствует мотив сознательной порчи изделий.
  2. Малый вес позволяет вести монтаж без применения спецтехники: практически вручную, используя только подъемный механизм или стремянку.
  3. Благодаря конструкции кассеты возможна быстрая замена «по месту» только испорченного элемента, без замены всей кассеты целиком.
  4. Возможно нанесение светоотражающих покрытий на центральную часть лицевой поверхности кассеты, либо изготовление маскирующей защелки из светопроницаемого материала и установка в ней  светодиодной подсветки, питающейся от солнечных батарей, установленных на тех же опорах.
  5. Низкая степень горючести – Г1 вследствие применения специальных добавок в процессе производства.
  6. Высочайшая степень стойкости к агрессивным средам: кислоты, нефтехимия,  песчано-солевая смесь.  Материал кассет совершенно не подвержен гниению.

Технические параметры

Шумопоглащающий экран
- Кассета с заполнением минеральной ватой и перфорированной наружной панелью. Усилитель - стальная труба прямоугольного сечения. Также возможно заполнение шлаком, керамзитом, гранулированным пенополистиролом, грунтом и т.п.
Шумоотражающий экран 

Поглащающие панели

Отражающие панели

Физико-химические свойства акустических экранов

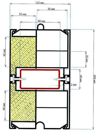
Размеры

ширина/ высота: 122 мм/ 200 мм

минеральная вата: толщина/ширина: 50мм/ 60 мм
по 2 в каждой панели

металлический профиль: высота/ ширина/ толщина:
80 мм/ 40 мм/ 2 мм
Берегоукрепление, продажа и монтаж шпунта ПВХ 
WaterSideRu@yandex.ru
+7-926-066-73-77
Privacy Policy
Скачать буклет о шпунтах SP
Lorem Ipsum is simply dummy text of the printing and typesetting industry. Lorem Ipsum has been the industry's standard dummy text ever since the 1500s, when an unknown printer took a galley of type and scrambled it to make a type specimen book. It has survived not only five centuries, but also the leap into electronic typesetting, remaining essentially unchanged. It was popularised in the 1960s with the release of Letraset sheets containing Lorem Ipsum passages, and more recently with desktop publishing software like Aldus PageMaker including versions of Lorem Ipsum.
Lorem Ipsum is simply dummy text of the printing and typesetting industry. Lorem Ipsum has been the industry's standard dummy text ever since the 1500s, when an unknown printer took a galley of type and scrambled it to make a type specimen book. It has survived not only five centuries, but also the leap into electronic typesetting, remaining essentially unchanged. It was popularised in the 1960s with the release of Letraset sheets containing Lorem Ipsum passages, and more recently with desktop publishing software like Aldus PageMaker including versions of Lorem Ipsum.